
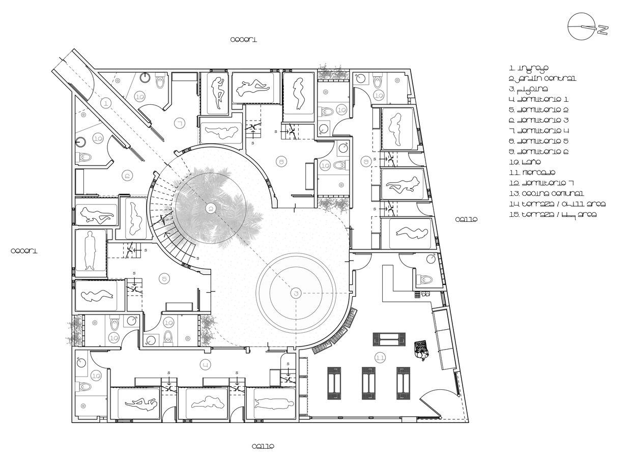
Al diseñar este proyecto, nos hemos inspirado en la ideología y arquitectura de los patios centrales presentes en las casas coloniales, los cuales forman parte integral de nuestra cultura latinoamericana.
Este espacio íntimo y privado permite disfrutar del sol y la brisa marina mientras se está aislado de la calle. El agua juega un papel crucial, simbolizando la purificación del cuerpo y del alma, además de contribuir a la reducción de la temperatura ambiental. Tanto el agua como la vegetación contribuyen a mantener una temperatura fresca, mientras que el diseño del patio proporciona luz y ventilación a todos los espacios sin comprometer la privacidad.
Caracola es más que un lugar para alojarse: es un espacio donde los viajeros pueden conectarse con la naturaleza, la cultura y entre ellos mientras disfrutan de una experiencia de surf auténtica y sostenible.
Lugar: El Paredón Buena Vista, Sipacate
Año: 2023
Área: 480 m²





















Usamos cookies para analizar el tráfico del sitio web y optimizar tu experiencia en el sitio. Al aceptar nuestro uso de cookies, tus datos se agruparán con los datos de todos los demás usuarios.